Skip To Content

4798 S Hwy 89-91

Wellsville, UT 84339
  • $3,950,000
  • STATUS: Active
  • ON SITE: 611 Days
  • ID#: 2015712
UPDATED: 68 min ago
$3,950,000
  • 0
    BEDS
  • 16.7
    ACRES
  • 0
    BATHS
  • 0
    1/2 BATHS
Type:
Vacant Land / Lots
County:

School Information

Elementary School:
Middle School:
High School:
School District:

Description

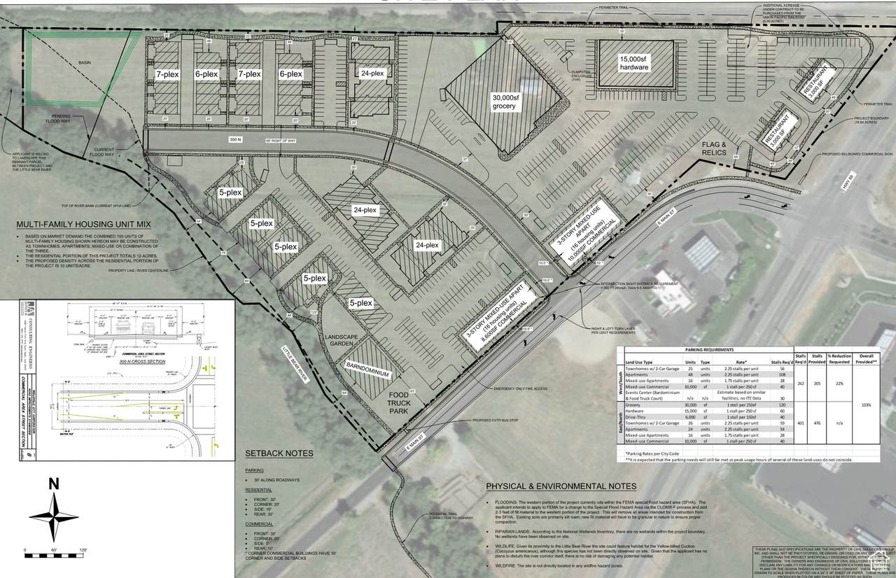
Exceptional Real Estate Opportunity in Wellsville City Listing price includes parcels 11-087-0008, 11-089-0009, and 11-087-0011. Explore the potential of approximately 18.84 acres in the heart of Wellsville City in this prime offering. This expansive site is ready for development with a Wellsville City-approved Site Specific Plan that envisions a vibrant, mixed-use community. The paper work and design to subdivde the property into separate commercial and residential parcels is in progress and anticipated to be completed by Spring 2026. This includes a traffic study, UDOT application, and roadway design. Key Features: Total Acreage: ~18.84 acres, as detailed in the civil engineering site plan. Approved Site Plan: Designed for a dynamic mix of townhomes, apartments, and commercial spaces including retail and office buildings. Flexible Purchase Options: Seller will consider the sale of residential and commercial components separately, providing versatile development opportunities. This site presents a unique chance to develop a comprehensive community with diverse uses. For detailed information, including plans and documents, please refer to the Seller Documents Link. Don't miss out on this exceptional opportunity to shape the future of Wellsville City. Seller Documents Link: https://drive.google.com/drive/folders/1xZOzJeQNeV9IxPU8OWt-B1V6RqsQxCr5?usp=sharing Seller Agent has financial interest in the property.

Monthly Payment Calculator



Based on information from the Wasatch Front Regional Multiple Listing Service, Inc. as of 2026-04-10T11:40:35.4. All data, including all measurements and calculations of area, is obtained from various sources and has not been, and will not be, verified by broker or the MLS. All information should be independently reviewed and verified for accuracy. Properties may or may not be listed by the office/agent presenting the information.The information provided is for consumers' personal, non-commercial use and may not be used for any purpose other than to identify prospective properties consumers may be interested in purchasing. Information deemed reliable but not guaranteed accurate. Buyer to verify all information.
www.viewhomesutah.com/homes/153372675
Print Image

4798 S Hwy 89-91 Wellsville, UT 84339

  • Price: $3,950,000
  • Status: Active
  • On Site: 611 Days
  • Updated: 68 min ago
  • ID#: 2015712
0
Beds
0
Baths
0
½ Baths
16.7
Acres
Neighborhood:
Wellsville; Young Ward; Hyrum
County:
Cache
Area:
Wellsville; Young Ward; Hyrum
Elementary School:
Wellsville
Middle School:
South Cache
High School:
Mountain Crest
School District:
Cache
Property Description
Exceptional Real Estate Opportunity in Wellsville City Listing price includes parcels 11-087-0008, 11-089-0009, and 11-087-0011. Explore the potential of approximately 18.84 acres in the heart of Wellsville City in this prime offering. This expansive site is ready for development with a Wellsville City-approved Site Specific Plan that envisions a vibrant, mixed-use community. The paper work and design to subdivde the property into separate commercial and residential parcels is in progress and anticipated to be completed by Spring 2026. This includes a traffic study, UDOT application, and roadway design. Key Features: Total Acreage: ~18.84 acres, as detailed in the civil engineering site plan. Approved Site Plan: Designed for a dynamic mix of townhomes, apartments, and commercial spaces including retail and office buildings. Flexible Purchase Options: Seller will consider the sale of residential and commercial components separately, providing versatile development opportunities. This site presents a unique chance to develop a comprehensive community with diverse uses. For detailed information, including plans and documents, please refer to the Seller Documents Link. Don't miss out on this exceptional opportunity to shape the future of Wellsville City. Seller Documents Link: https://drive.google.com/drive/folders/1xZOzJeQNeV9IxPU8OWt-B1V6RqsQxCr5?usp=sharing Seller Agent has financial interest in the property.
Exterior Features

Attached Garage YN No Carport YN No Covered Spaces 0 Frontage Length 0.0 Garage YN No Horse Property YN No Lot Size Dimensions 0.0x0.0x0.0 Mobile Length 0 Mobile Width 0 Open Parking YN No Parking Total 0 Pool Private YN No Spa YN No View YN No Waterfront YN No

Interior Features

Bathrooms Partial 0 Cooling YN No Fireplace YN No Heating YN False Rooms Total 0

Property Features

Association YN No Current Use ResidentialCommercialMulti-Family Direction Faces Southeast Lease Considered YN No New Construction YN No Property Attached YN No Property Condition Blt./Standing Property Sub Type Residential Senior Community YN No Tax Annual Amount 2000

Listing provided courtesy of Realtypath LLC (Pro): 801-814-7175. Information deemed reliable but not guaranteed accurate. Buyer to verify all information. © 2026 Wasatch Front Regional Multiple Listing Service, Inc., All Rights Reserved.


Based on information from the Wasatch Front Regional Multiple Listing Service, Inc. as of 2026-04-10T11:40:35.4. All data, including all measurements and calculations of area, is obtained from various sources and has not been, and will not be, verified by broker or the MLS. All information should be independently reviewed and verified for accuracy. Properties may or may not be listed by the office/agent presenting the information.The information provided is for consumers' personal, non-commercial use and may not be used for any purpose other than to identify prospective properties consumers may be interested in purchasing. Information deemed reliable but not guaranteed accurate. Buyer to verify all information.
 
https://bt-photos.global.ssl.fastly.net/wasatch/1280_boomver_2_2015712-1.jpg https://bt-photos.global.ssl.fastly.net/wasatch/1280_boomver_2_2015712-1.jpg https://bt-photos.global.ssl.fastly.net/wasatch/1280_boomver_2_2015712-1.jpg
Logo
Gurr Real Estate
1743 Sidewinder Drive Suite 100
Park City UT, 84060